Average Room Rate: $$$$ = $300 and Up
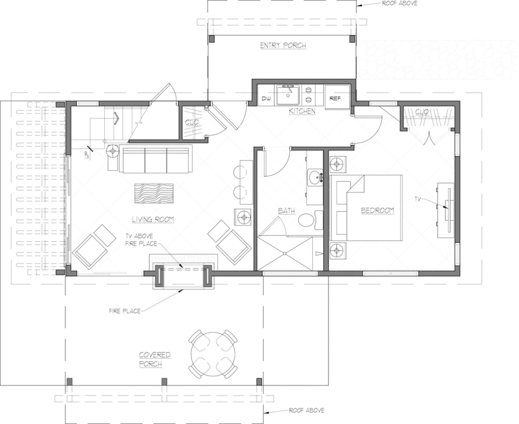
Facility Amenities: Bar/Lounge, Free Parking, Outdoor Grills, Parking on Site, Restaurant On Site
General Information: Free Wi-Fi, Number of Units: 17
Location: Mountain
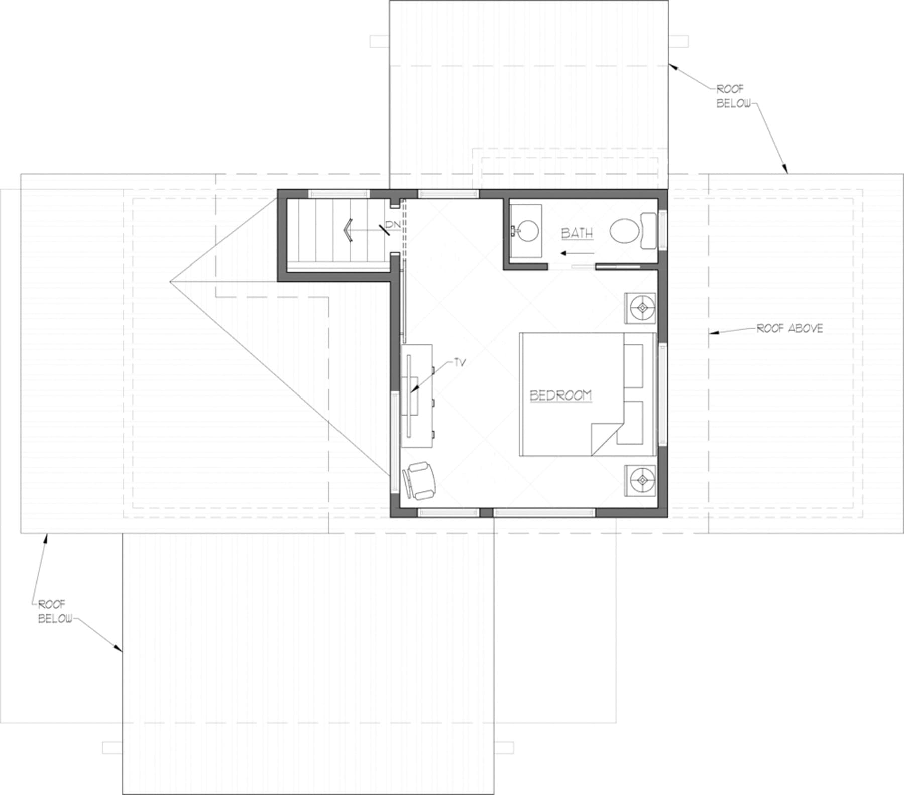
Room Amenities: Cable/Satellite TV, Hair Dryer, In-Room Fireplace, Iron/Ironing Board, Kitchen Facilities, Microwave, Refrigerator, Room Safe
Room Types: 1-Bedroom Units, 2-Bedroom Units, King, Queen
Rate Information: Fall/Winter (Range): $419 to $509, Spring/Summer (Range): $219 to $645

























